采購單位:廣西中醫藥大學
采購產品:手動密集架
廣東振越智能家具有限公司—主營:密集架,智能密集架,電動密集架,檔案密集架,是一家專注檔案裝具設備生產廠家。
138-2629-3157
廣東振越智能家具有限公司
全國免費服務熱線:020-37431808
24小時服務熱線:138-2629-3157
聯系人:袁先生
QQ:1654736290
地址:廣州市白云區江高鎮江村古樓工區東巷20號
手動密集架需求人介紹:廣西中醫藥大學創建于1956年,其前身是1934年成立的廣西省立南寧區醫藥研究所,是我國5個少數民族自治區中唯一獨立建制的高等中醫藥院校。2012年3月經國家教育部批準正式更名為廣西中醫藥大學,也是國家中西部基礎能力建設高校及國家中醫藥管理局與廣西壯族自治區共建高校。
1、客戶需求:
近期學生的招收等一些其它資料的存放,需要一批手動密集架。無意間瀏覽網頁,看到了我司官網(www.zzxlbz.cn),通過客服了解了一些:
(1)密集架尺寸多少?
(2)密集架的承重多少?
(3)密集架所用的材質、材料是哪些?
(4)材料是否可以加厚?等一些問題。客服轉手給我司專業業務經理,細心的回答了客戶所問的問題。客戶想當面進一步詳談,看一下我司是否能派人員過來一下。
2、勘察現場:
恰好我司有工程人員出差人員在廣西,所以當天就安排了工程人員去勘察一下現場,現場了解一些特別注意的地方。通過現場的勘察及與客戶深入溝通,了解到該學校有三個房間需要存放資料,需要放的
東西都比較重,因此需要加厚材料。我司工程人員了解到信息后,立馬反饋了客戶的現場情況。通過一番詳細的計劃,我司工程設計人員對于密集柜的設計采用了304不銹鋼路軌(帶護坡,防磕腳),軌板2.5mm鍍鋅方鋼,軌芯20*20mm實心鍍鋅方鋼,立柱、層板、掛板均加厚,材料均采用一次性成型的冷軋鋼板。杜絕發生承重不夠導致層板變形及意外事故的發生,振越鋼制精心為客戶設計。
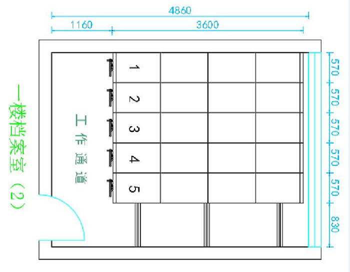
設計圖紙如下



3、方案確定:
我司給出的設計,該大學使用單位非常滿意,考慮的詳盡周到。簽約合同之后,我司安排生產部門加緊生產。售后部門加派人手搬運、安裝、調試,順利的完成了驗收。客戶售后反饋,對我司全程服務稱贊不絕。
手動密集架的選用就選振越鋼制!